Landscape Site Planning
What Is a Landscape Site Plan?
Apr 20, 2026
-
Blount Designs

A landscape site plan is a scaled, measured drawing that maps every outdoor element of a property — hardscape, planting, grading, drainage, pools, lighting, and structures — into a single coordinated document. It is the engineering-grade companion to the conceptual design. If a concept drawing shows what a landscape will look like, the site plan shows how it will actually be built: where the pool sits relative to setbacks, how water moves across the property, which trees stay, which need to come out, and how every material transition lines up in real space.
At Blount Designs, a site plan is produced on nearly every project across DFW, and remotely for clients working with our studio from other parts of the country. It is what separates a landscape that photographs well from one that drains correctly, meets community standards, and holds together years after the last crew leaves the site.
Schedule a design consultation to see how a site plan fits into your project scope.
What Does a Landscape Site Plan Actually Include?
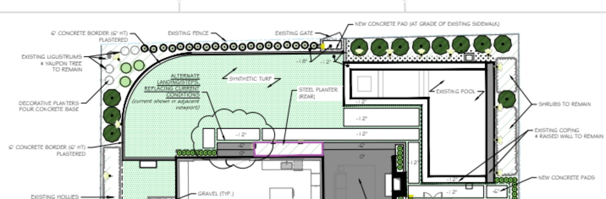
A complete landscape site plan is not one drawing — it is a coordinated set of overlays that share the same scaled base file. The base file is the starting point of every project we produce and is built from surveyed property lines, existing structures, utility locations, and topography. Everything layered on top of that base has to line up to the inch.
The hardscape layer defines the permanent built elements: pool shell and coping, decking and patios, outdoor kitchens, cabanas, walkways, driveways, retaining walls, and any structural features. The planting layer specifies species, mature sizes, placement, and spacing, with material call-outs so the installing crew is not guessing at substitutions. The grading and drainage layer — often the most technically demanding — shows how water moves across the property, where swales and catch basins are needed, and how finished grades meet existing ones. In our grading and retaining wall work, this layer is usually set before anything visible gets drawn.
Lighting is mapped on its own overlay, with fixture locations, circuits, and photometric intent. Water and fire features carry their own specs, including gas and plumbing service points. On new construction, the site plan also shows the finished floor elevation (FFE) of the house and how the surrounding grade ties to it. That coordination with the builder early in the process is one of the reasons our land design work is often engaged before a foundation is poured.

How Is a Site Plan Different From a Conceptual Design?
Conceptual design and site plan documentation are two different stages of the same project, and the difference trips up most homeowners approaching a design studio for the first time. A conceptual design captures intent: mood, spatial feel, material direction, and the big moves that define the property. Concepts are typically delivered with quick renderings that let a client see the vision before a line of construction documentation is drawn.
Once the concept is approved, the project moves into schematic design — a scaled, dimensioned version of the concept that proves the layout works in real space. Schematic design is where we hash out likes and dislikes in detail with the client. That review step is intentional; catching a change at schematic is straightforward, catching it at construction is expensive. From there the project moves into design development, where materials, fixtures, and specifications are locked in, and then into construction documents, which are the buildable, permit-ready set.
A "site plan" in the loose sense is often used to describe any of these deliverables. In practice, the term usually refers to the schematic or construction document set — the drawings that can be handed to a builder, pool contractor, or HOA review board. Our design process walks each stage in detail, so clients know what they are receiving and why. For a broader look at the designer's role in producing these sets, our post on what a landscape designer actually does goes a level deeper.
When Do You Actually Need a Formal Landscape Site Plan?
Not every landscape project requires full construction documentation. A single-bed refresh or a seasonal planting rotation can move forward on a concept sketch and a material list. A site plan becomes non-negotiable when the project involves anything of the following: new construction coordination with the builder, a pool or spa installation that requires permitting, retaining walls or significant grade changes, drainage correction on a lot with existing water issues, or any project in a community that requires landscape submissions to an HOA or architectural review board.
In DFW, several of the private communities we work in — Vaquero and Maverick in the Discovery Developments portfolio, Montrachet in Fort Worth, Westlake, Frisco's new build corridors, and Aledo's acreage sections — all have standards committees that review landscape documentation before any work begins. A site plan in those settings is not optional; it is the only way a project gets approved. For lake properties like Long Cove and Freestone, site plans also coordinate with shoreline and drainage regulations that generic concept work will not account for.
Homeowners planning a project that includes pool and spa design, hardscape installation, or major drainage and retaining work should expect a full site plan as part of the deliverables. The same is true for any custom landscape plan that includes multiple trades coordinating on one property.
Frequently Asked Questions About Landscape Site Plans
Do I need a site plan if my property is already landscaped?
For a refresh or a single-bed update, probably not. For any project that adds hardscape, changes grading, introduces a pool or water feature, or touches the property's drainage, a site plan protects the work. It also creates a record of what is underground — irrigation, low-voltage lighting, gas lines to fire features — that future projects can reference without guesswork.
Do HOAs require a landscape site plan?
Most high-standard DFW communities do. Architectural review boards in places like Vaquero, Maverick, Montrachet, Westlake, and Frisco's new development corridors typically require a scaled landscape plan showing hardscape, planting, grading, and lighting before work can begin. The level of documentation required varies by community — we coordinate directly with the review process as part of our community and new development work.
How long does a landscape site plan take to produce?
Timing depends on project scope, lot complexity, and how much coordination is needed with a builder, pool contractor, or HOA. A straightforward residential concept can move from base file to construction documents in weeks. A full estate with coordinated builder documentation, HOA review, and permit-stage grading drawings is a longer timeline. At the first consultation we scope the deliverables honestly — including whether a client needs direction and conceptual plans with quick renders, or full construction documents — and structure the process accordingly.
Can I get a landscape site plan for a property outside Texas?
Yes. We produce virtual design plans for clients across the United States who want studio-level documentation without a local designer on the ground. For out-of-market projects we work from surveys, photography, and video the client provides, and deliver the same base file, concept, and schematic documentation we would produce for a DFW estate. For permitting, drainage engineering, and HOA review, we typically coordinate with a local builder or civil engineer on the client's side.
If you are planning a new build, a pool project, or a full property redesign and want to understand what a complete set of landscape documents would look like for your property, request a design consultation and we will walk you through what the deliverables should include. For a closer look at the communities we work in and the projects we've produced across DFW, our project portfolio shows site plans translated into finished work.
Related



