Service
Land Design in Dallas, TX

Before any outdoor space gets built, the land itself has to make sense. For properties across Dallas, Frisco, Westlake, and Aledo — especially new construction lots and estate-scale renovations — the decisions made at the site planning stage determine everything that follows: how the property flows, where water drains, how outdoor zones relate to the structure, and how the land itself gets shaped to support a long-term design. That's what land design is, and it's where every Blount Designs project begins.
Schedule a land design consultation with Blount Designs.

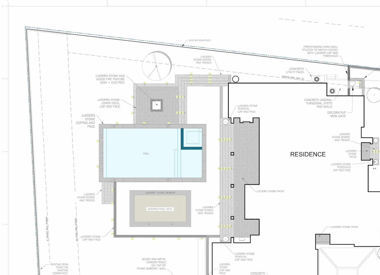
Site plan shown with client information, project details, and identifying data removed. Cropped for display purposes.
What Is Land Design, and Why Does It Come Before Landscaping?
Land design is the planning and site organization phase that happens before planting, hardscape installation, or any feature construction begins. It answers the foundational questions: Where does the outdoor living space go in relation to the home? How does the grade of the property direct water away from the structure? Where are the natural zones — entertaining, recreation, privacy, transition — and how do they connect?
Most homeowners who come to Blount Designs after completing a custom build have experienced what happens when this phase gets skipped or handed off to a builder's standard crew. The land was graded for drainage compliance, not for how the family actually uses the property. The backyard doesn't flow from the house. There's no sense of how the space was meant to be experienced. Land design corrects that from the start — or, when we're engaged early enough, prevents it entirely.
This is especially relevant for buyers in Frisco, Westlake, and Aledo working with large lots and new construction homes. A two-acre blank canvas requires a different kind of thinking than a finished urban backyard. The land itself has to be read — its topography, its drainage patterns, its relationship to the structure — before any design decisions are made.
How Does Land Design Differ From Landscape Design?
Landscape design focuses on what gets installed: plantings, hardscape materials, water features, lighting, outdoor living elements. Land design focuses on the canvas those elements go on. It addresses grading and site topography, drainage routing, zone layout, property circulation, and how the exterior environment relates to the architecture of the home.
In practice, the two phases overlap — Blount Designs handles both — but land design always comes first. A landscape plan built on an unresolved site is working against itself from day one. Getting the land right is what allows every downstream decision to be made intentionally.
Blount Designs approaches landscape and garden design as the second phase of a complete outdoor transformation. Land design is the foundation that makes those decisions durable.
What the Land Design Process Looks Like
Every land design engagement begins with a full site read. That means walking the property, understanding the topography, identifying drainage patterns and problem areas, reviewing the structure's footprint and how it sits on the lot, and understanding how the client actually intends to use the outdoor environment — now and over time.
From that site read, Blount Designs develops a land design plan that establishes:
Site grading and drainage routing — how the land moves water away from the structure and toward appropriate discharge points, in coordination with any grading and retaining wall work required. On multi-level properties, finished floor elevations and grade transitions between structures are resolved at this stage — before a single contractor is engaged.
Zone layout — how the property gets organized into functional areas: entertaining, recreation, transition, and privacy. On larger sites, this includes positioning sport courts, pool zones, motor courts, and garden areas in deliberate relationship to each other and to the residence.
Circulation — how people move through the property, from the entry to the home to outdoor spaces and beyond. This includes lead walks, motor court design, paver approach sequences, and how transition areas are marked through material change.
Relationship to the structure — how the outdoor environment connects to the interior through sightlines, door placement, glass railing positioning, and covered transitions. Hardscape material decisions — stone selection, patio configuration, freestanding wall design — follow directly from this planning phase.
Phasing — for large properties, how the site plan accommodates future additions without requiring rework of what's been built. Irrigation and drainage sleeves are specified at this stage so infrastructure isn't torn up later.
Once the land design plan is established, it serves as the blueprint for every subsequent phase — hardscape, planting, pool and spa placement, outdoor living and recreation areas, and feature installation.

Site plan shown with client information, project details, and identifying data removed. Cropped for display purposes.
Land Design in North Texas: What Makes DFW Properties Different
DFW's clay soil is among the most expansive in the country — it contracts significantly in drought and swells after rain, which is the cycle this region runs through every year. That movement affects hardscape, retaining walls, drainage patterns, and plant root systems in ways that designers unfamiliar with North Texas consistently underestimate. Resolving grade, drainage, and soil management at the land design stage is what prevents those problems from compounding through every subsequent phase of the project.
Larger DFW properties — particularly acreage sites in Aledo and estate lots in Westlake and Frisco — often involve grade changes that are more consequential than they appear on paper. A site that drains even slightly toward adjacent properties or toward a structure's foundation creates long-term problems that are expensive to correct. Our grading and retaining wall work on these sites is always developed as part of the land design plan — not as a separate scope added after the fact.
Many of the luxury communities Blount Designs works in across Frisco, Westlake, Southlake, and Aledo also require HOA or community site plan review and approval before construction begins. The documentation produced through the land design process — showing zone layout, grading, drainage, and structural relationships in a format architectural review boards accept — satisfies those requirements and keeps projects on schedule. For new construction buyers, engaging Blount Designs before the builder breaks ground means that review process runs parallel to construction rather than creating delays after completion.
If you're building a new home, working with an acreage property, or beginning a full estate transformation in the Dallas area, the outdoor environment deserves the same level of intention as the home itself. See how this thinking applies at scale in our Preserve project in Frisco and our Aledo landscape design work — both examples of land design informing every downstream decision on the property.
For projects that involve significant site grading or drainage engineering, a licensed landscape architect may need to be involved in a coordinating role. Blount Designs surfaces this early in every project scoping conversation. You can read more about when that line is crossed in our article on landscape architects vs. landscape designers in Dallas.
Frequently Asked Questions About Land Design in Dallas
Do I need land design if I already have a builder's landscape plan?
Builder landscape plans are typically scoped for grading compliance and basic drainage — not for how you intend to live in the space. A land design review can identify where that plan serves the property well and where it leaves opportunity unrealized. For most estate-scale and new construction projects, a full land design engagement replaces the builder plan rather than working around it.
At what point in a new construction project should land design happen?
Ideally, before the builder breaks ground — or as early in the construction process as possible. Decisions about grade, drainage outlets, and exterior door and window placement all affect what the land design can achieve. When Blount Designs is engaged before or during construction, the outdoor environment can be planned in full coordination with the build.
Does Blount Designs handle the grading and site work, or only the planning?
Blount Designs is a full-service outdoor design and build firm. The land design phase produces the site plan; the build phase executes it. That includes grading, drainage infrastructure, retaining walls where required, and all subsequent outdoor installations. Clients work with a single firm from concept through completion.
Contact Blount Designs to begin with a land design consultation.
